Zobacz przed/po
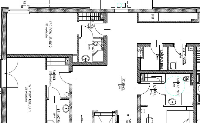
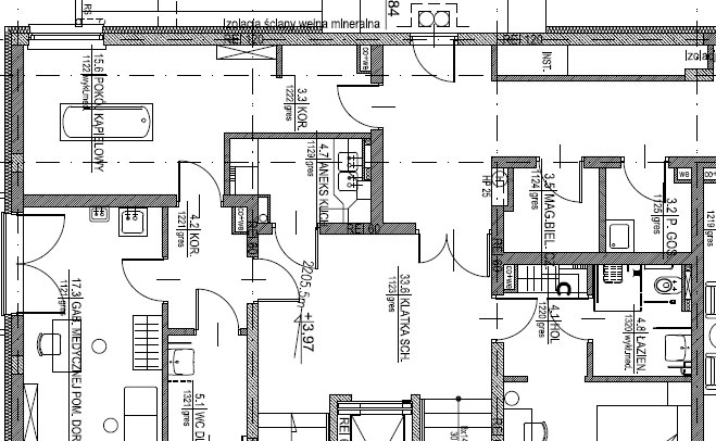
Opis: Rzuty po i przed zmianą funkcji pokoju mieszkalnego na pokój kapielowy z wanną najazdową przydatngo dla domu opieki społecznej dla osób starszych czyli "dom spokojnej starości" zwany także "domem starców"
icon_container
icon_container
| Projekt i wykonanie: WIZART |
Wzornictwo
|
Wnętrza
|
Architektura
|
O nas
|
Oferta
|
Kontakt
|
Porady
|