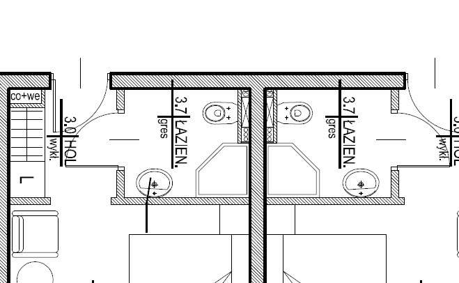
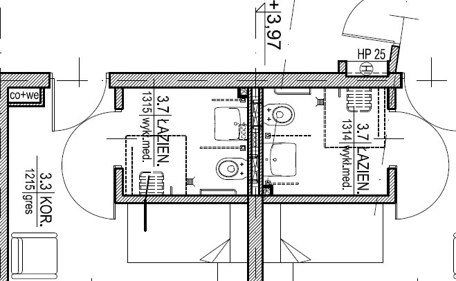
Zobacz przed/po
Opis: Rzuty łazienek po i przed zmianą. Bez zmiany położenia ścian niewielkich łazienek, po których została już poprowadzona instalacja elektryczna udało się przystosować je do użytku przez osoby niepełnosprawne zchowując wymagania określone ustawowo
icon_container
icon_container
| Projekt i wykonanie: WIZART |
Wzornictwo
|
Wnętrza
|
Architektura
|
O nas
|
Oferta
|
Kontakt
|
Porady
|